Loders Bridport
House
SITUATION: This trio of period properties with extensive range of outdoor facilities is nestled into the heart of Loders village with gated driveway, shutting it away from the main village lane. What lies behind this formal entrance is completely private and secluded enjoying total tranquillity. It backs onto pasture land leading to the River Asker. This is a Conservation Area and an Area of Outstanding Natural Beauty.
Loders is a vibrant community village supporting an Ofsted Rated Good primary school, a modern village hall (a popular venue for wide variety of classes, clubs and celebrations and with stage facility), Parish Church, recreational field with play area, allotment gardens, pub/restaurant with skittle alley, community orchard and nature reserve. There are established groups for monitoring and protecting river and country habitats, a network of scenic pathways and bridleways and there is a prolific local history group. There is also an annual Fete, Carol singing, Scarecrow Festival and Boxing Day Hockey Match.
The historic and cultural town of Bridport lies some 2.7 miles away renowned for its vintage and artists' quadrant and twice-weekly street market, Electric Palace cinema/theatre, Art Centre and Leisure Centre and the central "Bucky Doo Square" which hosts bands, festivities and events all year round.
The coastal village/resort of West Bay lies some 4 miles to the south with its fishing and boating harbour, golf course, range of marine and leisure pursuits and is the gateway to the Jurassic Coastline and South West Coastal Paths. The fossil fame of the Jurassic Coastline is also celebrated here and particularly at Lyme Regis some 13 miles away.
THE PROPERTY is completely unique in that it has grown from a family "good life/work from home farmhouse" with 2 holiday lets with swimming pool and extensive gardens producing a wealth of flowers, fruits, herbs and vegetables developed to a multi-generational complex with triple garages/workshops, sauna, substantial modern outdoor leisure cabin (ideal as a wellness/counselling venue or gym) with attached outdoor kitchen/dining area, hot tub, chicken pen, fenced pond and children's play corner. The whole site offers superb versatility for those with a particular bent towards learning/teaching/specific interests and particularly for children to grow and learn.
The huge main reception room in the farmhouse together with the adjoining dining room offers an amazing venue for hosting as it can accommodate some 35 people to a sit-down meal which the kitchen facilities are well able to provide for!
These character period properties have been nurtured through the years with every attention to detail and are beautifully presented throughout - ready to accommodate new buyers with nothing to do immediately.
THE MAIN HOUSE is an 'L'-shaped barn conversion dating from 1980 and comprises:
SPACIOUS ENTRANCE HALL with feature open dog-leg staircase rising to the first floor with CLOAKROOM off.
CHARACTER 40' LIVING ROOM: An extensive and flexible room with feature raised fireplace accommodating a wood burning stove, whitewashed exposed stone walls with display niche and oak flooring and opens to the:
FORMAL DINING ROOM further opening to the
SPACIOUS KITCHEN which is superbly fitted with an extensive range of wall and base units with granite work surfaces including dual built-in ovens and a microwave/oven, a gas hob and mainly integrated appliances and a peninsular breakfast bar all with a flagstone floor with under-floor heating. The breakfast area extends into a seating area with Velux windows and bi-fold doors opening to a newly replaced composite-decked area for enjoying the sunshine.
Door to:
UTILITY ROOM with skylight over and with door opening to the outside and providing built-in cupboards housing the hot water cylinder and water softener together with storage.
From here there is a communicating door to the Hay Barn annexe.
FIRST FLOOR
SPACIOUS GALLERIED LANDING providing sitting/study space.
PRINCIPAL BEDROOM with DRESSING ROOM and EN-SUITE SHOWER ROOM
4 FURTHER BEDROOMS and LUXURY FAMILY BATHROOM
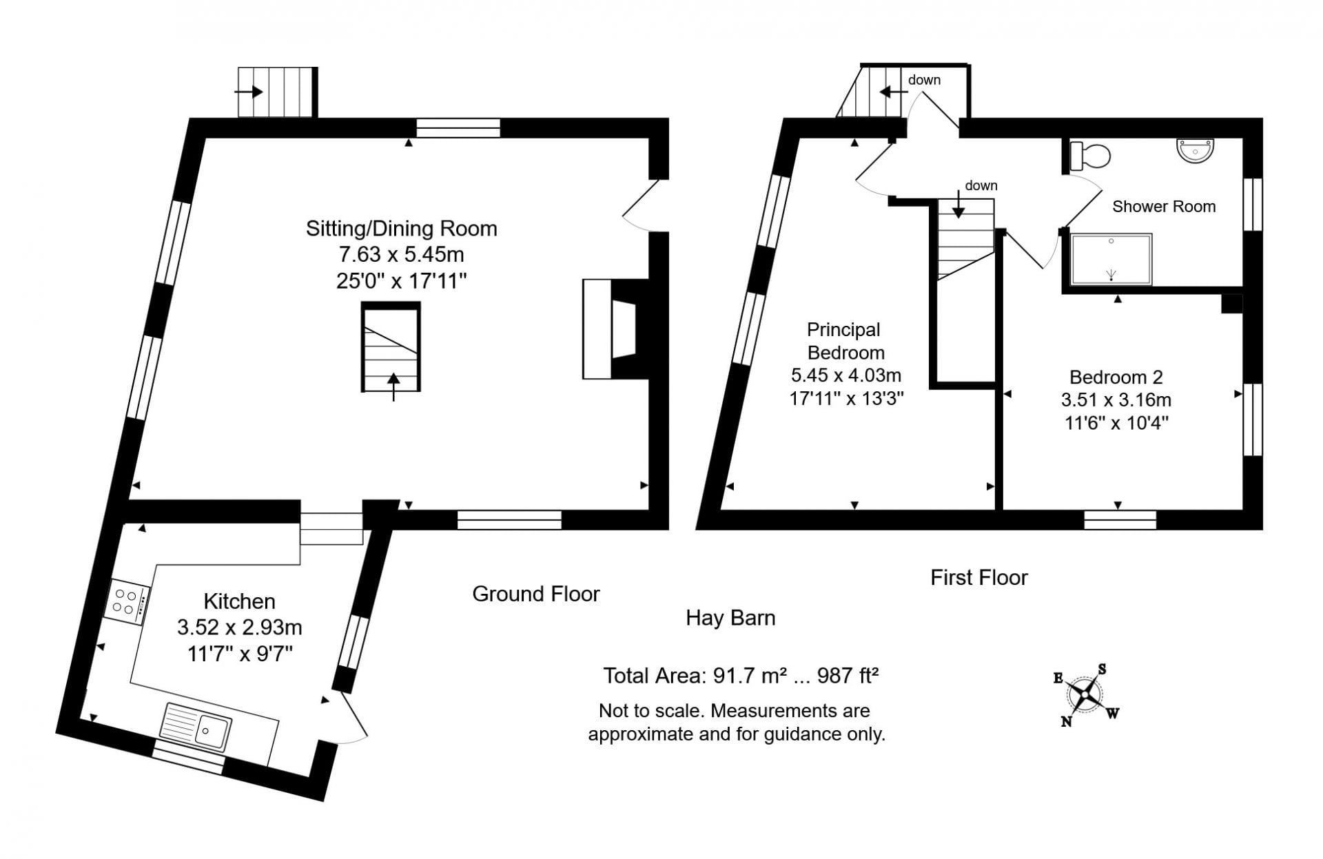
THE ADJOINING HAY BARN has a communicating door on the ground floor off the main house utility room and also an outside staircase rising to the ground and first floors.
SHAPED HALL with CLOAKROOM off.
SITTING/DINING ROOM with central open staircase rising to the first floor. Fireplace with wood-burner fitted. Small flight of steps rising to the:
KITCHEN: Shaped room with windows to the south and east and well fitted with a range of wooden units.
FIRST FLOOR
The internal staircase rises to the LANDING which has door access out to an alternative outside staircase.
PRINCIPAL BEDROOM with 2 windows to the west.
SECOND BEDROOM with dual aspects.
LARGE MODERN SHOWER ROOM SUITE.
THE STRAW LOFT comprises a detached stone and part-rendered barn conversion affording:
TRIPLE GARAGES with 3 metal up-and-over doors serviced with power and light and a CLOAKROOM in the north corner, ideal for vintage car/motorbike storage and potentially a CERAMICS/STUDIO or CARPENTRY WORKSHOP.
A stone flight of steps to the south rises to a
FIRST FLOOR APARTMENT comprising
LIVING ROOM/DINING/KITCHEN, 3 BEDROOMS AND BATHROOM.
OUTSIDE
There is extensive gated courtyard parking extending to the triple garages/workshops at the rear.
The whole site extends to approx 0.75 acre and provides level gardens/grounds all well landscaped and planted for maximum lifestyle enjoyment.
SERVICES: Mains water, drainage and electric. Oil-fired central heating with underfloor heating in kitchen and bathrooms in the main house. Programmable zoned heating. PV panels providing a tax-free income. Pool heated via oil-fired boiler/air source heat pump. Calor gas-fired hob in main house. For broadband and mobile services go the Ofcom website for more information.
Main House Council Tax Band G. The Hay Barn and The Straw Loft are Council Tax Band A.
Energy Performance Ratings:
The Barns: D
Straw Loft: E
Hay Barn: C
TC/CC/KEA250013/14225
Loders is a vibrant community village supporting an Ofsted Rated Good primary school, a modern village hall (a popular venue for wide variety of classes, clubs and celebrations and with stage facility), Parish Church, recreational field with play area, allotment gardens, pub/restaurant with skittle alley, community orchard and nature reserve. There are established groups for monitoring and protecting river and country habitats, a network of scenic pathways and bridleways and there is a prolific local history group. There is also an annual Fete, Carol singing, Scarecrow Festival and Boxing Day Hockey Match.
The historic and cultural town of Bridport lies some 2.7 miles away renowned for its vintage and artists' quadrant and twice-weekly street market, Electric Palace cinema/theatre, Art Centre and Leisure Centre and the central "Bucky Doo Square" which hosts bands, festivities and events all year round.
The coastal village/resort of West Bay lies some 4 miles to the south with its fishing and boating harbour, golf course, range of marine and leisure pursuits and is the gateway to the Jurassic Coastline and South West Coastal Paths. The fossil fame of the Jurassic Coastline is also celebrated here and particularly at Lyme Regis some 13 miles away.
THE PROPERTY is completely unique in that it has grown from a family "good life/work from home farmhouse" with 2 holiday lets with swimming pool and extensive gardens producing a wealth of flowers, fruits, herbs and vegetables developed to a multi-generational complex with triple garages/workshops, sauna, substantial modern outdoor leisure cabin (ideal as a wellness/counselling venue or gym) with attached outdoor kitchen/dining area, hot tub, chicken pen, fenced pond and children's play corner. The whole site offers superb versatility for those with a particular bent towards learning/teaching/specific interests and particularly for children to grow and learn.
The huge main reception room in the farmhouse together with the adjoining dining room offers an amazing venue for hosting as it can accommodate some 35 people to a sit-down meal which the kitchen facilities are well able to provide for!
These character period properties have been nurtured through the years with every attention to detail and are beautifully presented throughout - ready to accommodate new buyers with nothing to do immediately.
THE MAIN HOUSE is an 'L'-shaped barn conversion dating from 1980 and comprises:
SPACIOUS ENTRANCE HALL with feature open dog-leg staircase rising to the first floor with CLOAKROOM off.
CHARACTER 40' LIVING ROOM: An extensive and flexible room with feature raised fireplace accommodating a wood burning stove, whitewashed exposed stone walls with display niche and oak flooring and opens to the:
FORMAL DINING ROOM further opening to the
SPACIOUS KITCHEN which is superbly fitted with an extensive range of wall and base units with granite work surfaces including dual built-in ovens and a microwave/oven, a gas hob and mainly integrated appliances and a peninsular breakfast bar all with a flagstone floor with under-floor heating. The breakfast area extends into a seating area with Velux windows and bi-fold doors opening to a newly replaced composite-decked area for enjoying the sunshine.
Door to:
UTILITY ROOM with skylight over and with door opening to the outside and providing built-in cupboards housing the hot water cylinder and water softener together with storage.
From here there is a communicating door to the Hay Barn annexe.
FIRST FLOOR
SPACIOUS GALLERIED LANDING providing sitting/study space.
PRINCIPAL BEDROOM with DRESSING ROOM and EN-SUITE SHOWER ROOM
4 FURTHER BEDROOMS and LUXURY FAMILY BATHROOM
THE ADJOINING HAY BARN has a communicating door on the ground floor off the main house utility room and also an outside staircase rising to the ground and first floors.
SHAPED HALL with CLOAKROOM off.
SITTING/DINING ROOM with central open staircase rising to the first floor. Fireplace with wood-burner fitted. Small flight of steps rising to the:
KITCHEN: Shaped room with windows to the south and east and well fitted with a range of wooden units.
FIRST FLOOR
The internal staircase rises to the LANDING which has door access out to an alternative outside staircase.
PRINCIPAL BEDROOM with 2 windows to the west.
SECOND BEDROOM with dual aspects.
LARGE MODERN SHOWER ROOM SUITE.
THE STRAW LOFT comprises a detached stone and part-rendered barn conversion affording:
TRIPLE GARAGES with 3 metal up-and-over doors serviced with power and light and a CLOAKROOM in the north corner, ideal for vintage car/motorbike storage and potentially a CERAMICS/STUDIO or CARPENTRY WORKSHOP.
A stone flight of steps to the south rises to a
FIRST FLOOR APARTMENT comprising
LIVING ROOM/DINING/KITCHEN, 3 BEDROOMS AND BATHROOM.
OUTSIDE
There is extensive gated courtyard parking extending to the triple garages/workshops at the rear.
The whole site extends to approx 0.75 acre and provides level gardens/grounds all well landscaped and planted for maximum lifestyle enjoyment.
SERVICES: Mains water, drainage and electric. Oil-fired central heating with underfloor heating in kitchen and bathrooms in the main house. Programmable zoned heating. PV panels providing a tax-free income. Pool heated via oil-fired boiler/air source heat pump. Calor gas-fired hob in main house. For broadband and mobile services go the Ofcom website for more information.
Main House Council Tax Band G. The Hay Barn and The Straw Loft are Council Tax Band A.
Energy Performance Ratings:
The Barns: D
Straw Loft: E
Hay Barn: C
TC/CC/KEA250013/14225
For Sale
Guide Price £1,400,000
- 10
- 5
- 4
0.75 Acres
: KEA250013
: 64
: 81
: 51
: 56
